欢迎来到安平县秉德丝网制品有限公司网站!

联系我们
网站地图 | 
安平县秉德丝网制品有限公司

热门关键词搜索: 双边丝护栏网锌钢护栏网勾花护栏网市政护栏网车间隔离栅框架护栏网防眩网

网站首页 > 技术支持

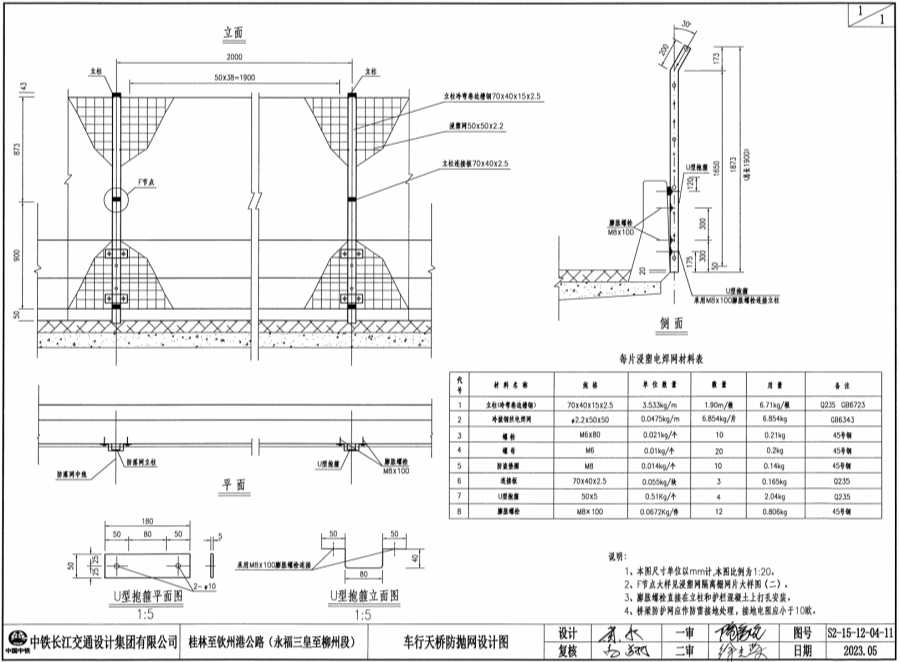
广西桂林至钦州港公路车行天桥防抛网专业生产厂家

添加日期:2025-11-14 阅读量:

广西桂林至钦州港公路车行天桥防抛网专业生产厂家

1、本图尺寸单位以mm计,本图比例为1:20。

2、F节点大样见浸塑网隔离栅网片大样图(二)。

3、膨胀螺栓直接在立柱和护栏混凝士上打孔安装.

4、桥梁防护网应作防雷接地处理,接地电阻应小于10欧。


  
24小时咨询热线:13292231119QQ在线咨询:3219383557 微信号:13292231119
二维码 二维码
在线客服

安平县秉德丝网制品有限公司

QQ交谈

咨询电话

实力打造品质

诚信统领市场