欢迎来到安平县秉德丝网制品有限公司网站!

联系我们
网站地图 | 
安平县秉德丝网制品有限公司

热门关键词搜索: 双边丝护栏网锌钢护栏网勾花护栏网市政护栏网车间隔离栅框架护栏网防眩网

网站首页 > 技术支持

山西忻州岢岚县光伏场区围栏专业生产厂家

添加日期:2025-11-13 阅读量:

山西忻州岢岚县光伏场区围栏专业生产厂家

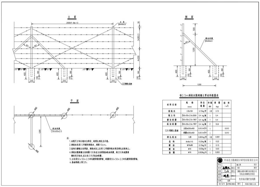
1.本图尺寸均以毫米为单位,绘图比例仅为示意。

2.刺铁丝采用12号镀锌刺铁丝,刺距10cm。

3.挂钩与槽钢立柱焊接,刺铁丝拉上后用12号镀锌铁丝将其绑扎在铁钩上。

4.刺铁丝隔离栅立柱每隔100米在立柱两侧加纵向斜撑,每200米或隔离栅改变方向处,在立柱三个方向加斜撑。

5.立柱用50x50x2.5冷轧镀锌镁铝带钢,斜撑用50x50x2.5冷轧镀锌镁铝带钢。

6.基础混凝土用C25。


  
24小时咨询热线:13292231119QQ在线咨询:3219383557 微信号:13292231119
二维码 二维码
在线客服

安平县秉德丝网制品有限公司

QQ交谈

咨询电话

实力打造品质

诚信统领市场