欢迎来到安平县秉德丝网制品有限公司网站!

邹城至济宁公路工程电焊网隔离栅专业生产厂家
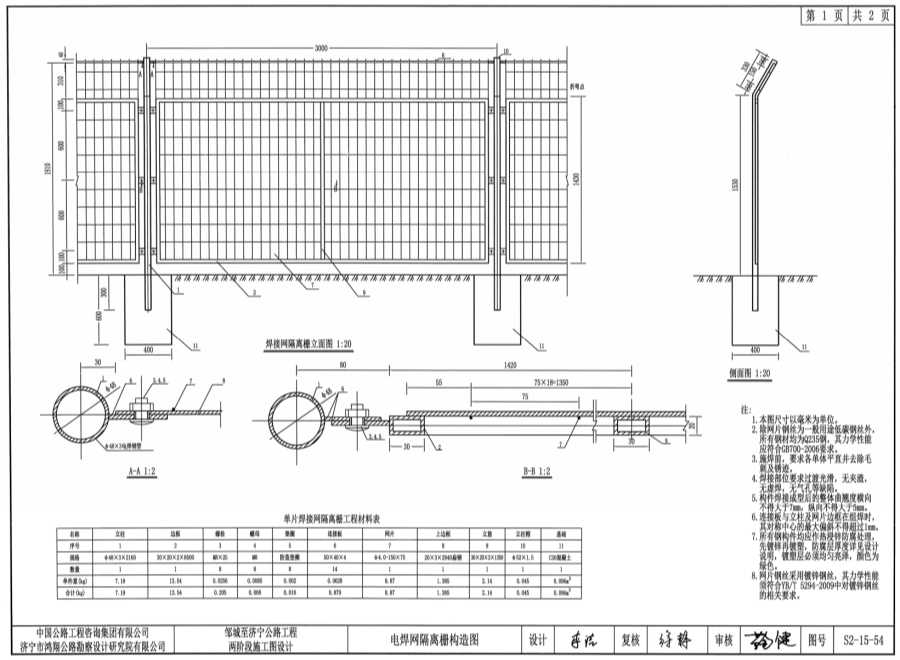
1.本图尺寸以毫米为单位。
2.除网片钢丝为一般用途低碳钢丝外所有钢材均为Q235钢,其力学性能应符合GB700-2006要求。
3.施焊前,要求各单体平直并去除毛刺及锈迹。
4.焊接部位要求过渡光滑,无夹渣,无虚焊,无气孔等缺陷。
5.构件焊接成型后的整体曲翘度横向不得大于7mm,纵向不得大于5mm。
6.连接板与立柱及网片边框在组焊时其对称中心的偏斜不得超过1mm,
7.所有钢构件均应作热浸锌防腐处理,先镀锌再镀塑,防腐层厚度详见设计说明,镀塑层必须均匀亮泽,颜色为绿色。
8.网片钢丝采用镀锌钢丝,其力学性能须符合YB/T5294-2009中对镀锌钢丝的相关要求。